ieteam
Oficinas ieTeam Consultores

ieTeam es una consultoría de ámbito internacional que ofrece servicios a empresas en diferentes áreas. Su sede central se encuentra en el parque empresarial Zuatzu, en Donostia, donde hemos realizado el proyecto para reformar y ampliar sus oficinas, adaptándolas a una nueva etapa empresarial.

/ necesidades

La personalidad de la empresa y el fuerte sentimiento de equipo requerían de algo más que un lugar de trabajo. El proyecto debía ofrecer un lugar de convivencia, un hogar.

El diseño del espacio responde además a unos requisitos de partida muy claros, donde deben encajar la forma de trabajar propia de la empresa con la manera particular de recibir y atender a los diferentes tipos de visitas.

Por un lado, los consultores necesitan variedad de espacios que se adapten a las diferentes situaciones de trabajo, tanto en equipo como individualmente. Por otro lado, las diferentes áreas de la empresa reciben diferentes perfiles de visitantes: desde candidatos que acuden a entrevistas de trabajo hasta reuniones con directivos y eventos ocasionales. Además se crea un nuevo área de aceleración de startups que acoge a pequeñas empresas en un espacio de coworking.

El reto que se plantea supone dar solución a un espacio fluido, variado y versátil, que facilite los recorridos independientes para cada perfil de usuario y que respete al máximo los lugares de absoluta privacidad.

/ propuesta

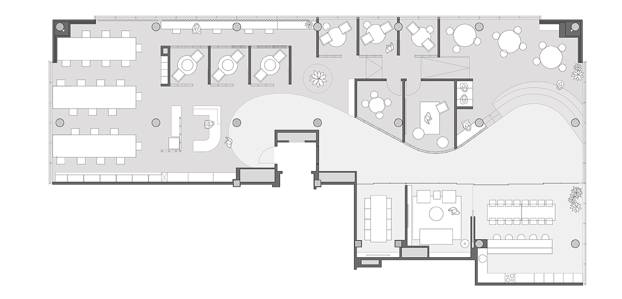
Para resolverlo se plantea un espacio abierto, articulado únicamente por los bloques cerrados que contienen las pequeñas salas de entrevistas, para las cuales se ha diseñado una mampara a medida, de madera y vidrio translúcido, que deja pasar la luz cuidando la privacidad acústica y visual al máximo.

Entre estos bloques se generan una serie de espacios de diferentes proporciones que definen el uso de cada zona: de paso, de trabajo, zonas de mayor concentración o de reunión.

La rigidez de los elementos cerrados se rompe con una gran curva, una “ola”, envuelve y dirige al visitante desde la entrada hacia la zona de actividad más pública. Este gesto curvilíneo se refleja en paramentos, techo y suelos y hace el recorrido hasta la zona de eventos más natural e intuitivo.

El área de coworking se ha elevado para diferenciarla, sin que pierda su conexión con el resto del espacio. Esta elevación ayuda además a crear el graderío que da forma al área de eventos, cursos y conferencias.

Inspirados en su forma de relacionarse, se han combinado espacios de trabajo con espacios domésticos, como una gran cocina o un salón donde reunirse. Estos espacios sirven además para acoger de manera informal a sus visitas y recibirles de una manera más relajada.

Lugar Donostia, Gipuzkoa

Superficie 400m²

Fecha 2019

Arquitectos María Yáñez | Gorka Ugarte

Fotografía Omar Ulacia

reforma oficinas ieTeam
reforma oficinas ieTeam
reforma oficinas ieTeam
reforma oficinas ieTeam
reforma oficinas ieTeam
reforma oficinas ieTeam
reforma oficinas ieTeam
reforma oficinas ieTeam
reforma oficinas ieTeam
reforma oficinas ieTeam
reforma oficinas ieTeam
reforma oficinas ieTeam
reforma oficinas ieTeam
reforma oficinas ieTeam
reforma oficinas ieTeam
reforma oficinas ieTeam
reforma oficinas ieTeam
reforma oficinas ieTeam
reforma oficinas ieTeam
reforma oficinas ieTeam
reforma oficinas ieTeam
reforma oficinas ieTeam